
Отправьте нам заявку и мы перезвоним вам в ближайшее время.
| Марка | Котел КВр 3.0 |
| Вид топки | Ручная колосниковая |
| Мощность, кВт | 3000 |
| Мощность, МВт | 3 |
| Мощность, Гкал | 2.6 |
| Отапливаемая площадь, м² | 30000 |
| Отапливаемый объем, м³ | 90000 |
| Вид топлива | Уголь |
| Тяга | Уравновешенная |
| Низшая теплота сгорания топлива, кКал/кг | 5230 |
| КПД, не менее, % | 80 |
| Расход топлива, кг/ч | 585 |
| Расход условного топлива, кг/ч | 458 |
| Температура уходящих газов, °C | 200 |
| Расход теплоносителя среды, м³/ч | 104 |
| Температура воды, °C | 70-95 |
| Давление рабочей среды, МПа (кгс/cм²) | 0.3-0.6 (3.0-6.0) |
| Гидравлическое сопротивление при перепаде t, МПа (кгс/cм²) | 0.1 (1.0) |
| Аэродинамическое сопротивление, Па (мм. вод. ст.) | 600 |
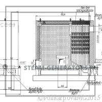
| Габаритные размеры, длина*ширина*высота, мм | 4300*2000*2900 |
Водогрейный котел 3 МВт (3000 кВт) предназначен для отопления и горячего водоснабжения. Устанавливается в котельных с ручными топками. Котел работает с принудительной циркуляцией и принудительной тягой, обеспечиваемой вентилятором и дымососом. Температура нагрева воды в котле равна 115 °С, рабочее давление 3-6 МПа. Основным видом топлива являются каменный и бурый уголь. Резервный вид топлива дрова.
Гладкотрубный, горизонтальной компоновки. В передней части котла имеется ручная колосниковая топка с зольником, в задней части двухходовой конвективный пакет. Топочное пространство газоплотное. Газоплотность топки обеспечивается вваркой стальной полосы между охлаждаемых труб котла и исключает присосы холодного воздуха в топочную камеру и зону горения топлива. Воздух для горения топлива поступает снизу из зольника. Водогрейный котел 3 МВт имеет каркас, на котором установлена теплоизоляция. Изоляция котла обеспечивает температуру наружной стенки не более 30 °С, выполняется из плит ПТЭ, устанавливаемых на трубную систему. Водогрейный котел обшивается металлическими листами.
Водогрейный котел 3 МВт имеет минимальные требования к качеству питательной воды. Теплоноситель двигается по трубам со скоростью 1-1,5 м/с, что турбулизирует течение и предотвращает наслоение солей и накипи на стенках трубной системы котла. Коллектора котла обладают множеством переборок, распределяющие поток теплоносителя таким образом, что в котле исключена вероятность образования застойных зон и возникновения теплового напряжения в трубной системе котла и ее локальное перегревание. Большие скорости и многоходовая схема перемещения воды гарантирует высокую маневренность котла по мощности. Конструкция водогрейного котла 3 МВт обеспечивает высокий КПД.
В котле максимально минимизированы потери с механическим и химическим недожогом топлива, с температурой уходящих газов и через ограждающие поверхности. Большой объем топочной камеры и ее оптимальная высота обеспечивают полное прогорание топлива, мельчайшие частицы топлива выносимые в топочный объем, успевают полностью прогореть. Образующаяся при этом зола и шлак проваливаются в зольный короб под колосниками.
Конвективные пакеты выполняются в виде плотных регистров и вставляются в котле друг напротив друга в шахматном порядке. Устроенная таким образом поверхность нагрева имеет обширную полезную площадь, участвующую в передаче тепла, и максимальный коэффициент теплопередачи, горячие дымовые газы на выходе из котла охлаждаются до температуры 160-180 °С, в зависимости от вида топлива. Кроме того, организация данным образом трубной системы котла обеспечивает его компактность.
Водогрейный котел 3 МВт поставляется максимальной монтажной готовности. Котел выполняется моноблоком - котел с изоляцией и топка с опорами. Котельный блок устанавливается ровную поверхность пола, закрепляется, подключается теплоноситель, КИП и запорная арматура, сверху подводится газоход. Для отвода дымовых газов к газоходу подсоединяется дымосос.
Водогрейный котел 3 МВт поставляется в комплекте с вентилятором поддува, колосниками, топочной дверкой, клапанами предохранительными, вентилями, манометрами, термометрами, паспортом котла и инструкцией по эксплуатации котла.
Основные качества водогрейного котла 3 МВт с ручной топкой:
Купить водогрейный котел 3 МВт вы можете в нашем электронном магазине через форму заказа, либо позвонив по телефону 8-800-700-17-43 в отдел сбыта. Котельный завод производит котлы мощностью 3 МВт иных модификаций. Транспортирование котлов и другого котельно-вспомогательного оборудования осуществляется автотранспортом, ж/д полувагонами и речным транспортом. Котельный завод поставляет продукцию во все регионы России и Казахстана. Менеджеры отдела сбыта дают консультацию по всем вопросам подбора оборудования и рассчитывают стоимость доставки до вашего региона.
Водогрейный котел 2,5 МВт применяется для отопления и горячего водоснабжения. В комплект поставки входит - котел с топкой, вентилятор, клапаны, арматура, КИП. Может изготавливаться в комбинированном исполнении- уголь/дрова.
Водогрейный котел 3,5 МВт применяется для отопления и горячего водоснабжения. В комплект поставки входит - котел с топкой, вентилятор, клапаны, арматура, КИП. Может изготавливаться в комбинированном исполнении- уголь/дрова.
Водогрейный газовый котел 3 МВт работает на газе, дизеле, мазуте. В комплект поставки входит - котел, арматура, клапаны, КИП. Работает с импортными и отечественными горелками.
Водогрейный угольный котел 3 МВт с топкой с шурующей планкой ТШПМ. Применяется для отопления и горячего водоснабжения. Комплект поставки - котел, топка с приводом, вентилятор, клапаны, арматура, КИП.