
Отправьте нам заявку и мы перезвоним вам в ближайшее время.
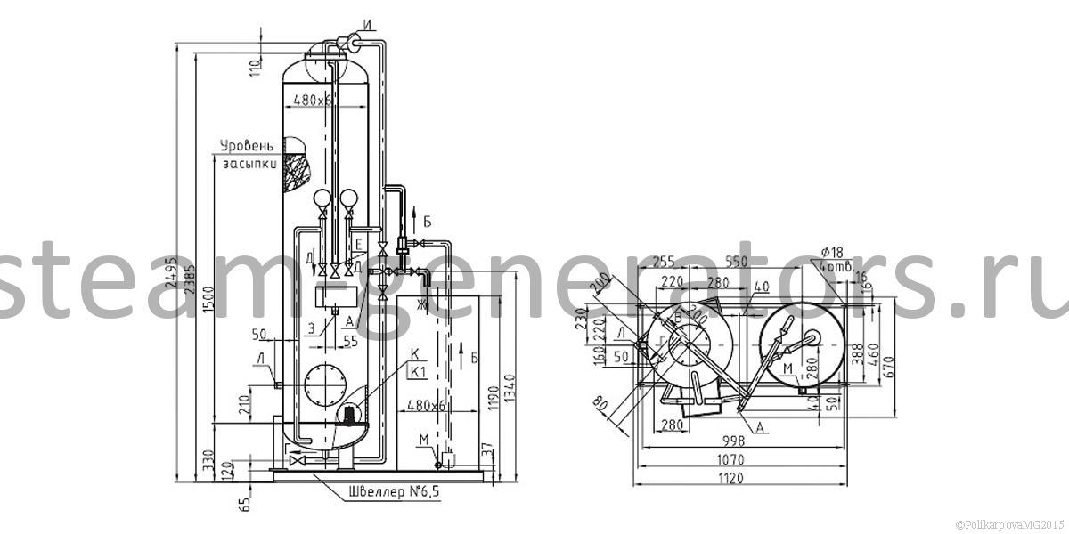
| Марка | БВПУ-1 |
| Производительность, м³/ч | 1 |
| Давление рабочей среды, МПа (кгс/cм²) | 0.4 |
| Давление пробн. при гидравл.испытании, МПа | 0.6 |
| Вместимость фильтра, м³ | 0.36 |
| Вместимость бака-солерастворителя, м³ | 0.19 |
| Объем фильтрующей загрузки, м³ | 0.26 |
| Объем загрузки соли, м³ | 0.05 |
| Масса, кг | 390 |
Водоподготовительная установка БВПУ 1 используется для очистки природных вод, поступающих из поверхностных и подземных источников.
Блочная водоподготовительная установка БВПУ 1 производит осветление, обесцвечивание, обезжелезивание, обессоливание, поправление минерального состава и обеззараживания воды, то есть доведение её качества до нормативных требований.
Блочная водоподготовительная установка применяется в автономных и централизованных системах водоснабжения, таких как предприятия газовой, нефтяной, пищевой и других промышленностей, объекты ЖКХ, воинские части, энергетические комплексы и прочее.
Водоподготовка БВПУ 1 имеет следующий ряд преимуществ: ведет качественную очистку воды, учитывая ее возможное изменение состава; кратчайшие сроки выполнения монтажных работ; продолжительный срок эксплуатации. Конструкция БВПУ 1 позволяет проводить модернизацию установки с минимальными затратами.
Купить водоподготовку БВПУ 1 вы можете в нашем электронном магазине через форму заказа, либо позвонив по телефону 8-800-700-17-43 в отдел сбыта. Транспортирование систем водоподготовки и другого котельно-вспомогательного оборудования осуществляется автотранспортом, ж/д полувагонами и речным транспортом. Котельный завод поставляет продукцию во все регионы России и Казахстана. Менеджеры отдела сбыта дают консультацию по всем вопросам подбора оборудования и рассчитывают стоимость доставки до вашего региона.
Блочная водоподготовительная установка БВПУ 0,4 представляют собой скомпонованный и обвязанный трубопроводами набор узлов установленных на общей раме и предназначены для осветления и умягчения воды в котельной.
Блочная водоподготовительная установка БВПУ 5 представляют собой скомпонованный и обвязанный трубопроводами набор узлов установленных на общей раме и предназначены для осветления и умягчения воды в котельной.
Система Комплексон предназначена для противонакипной и противокоррозионной обработки воды методом дозирования в подпиточную воду ингибиторов накипеобразования и ингибиторов коррозии, реагентов для химического обескислороживания.